Mac Door Operator Manual

Mac Door Operator Manual. Web mac elevator door operator manual diagram 'these elevators seems quite busy.' this list/page is always incomplete. Usage to research tool to find installation instructions, data sheets, product literature and service part manuals.

Instruction Manual For Mac Ah600k Air Hammer browndocs
Instruction Manual For Mac Ah600k Air Hammer browndocs from browndocs549.weebly.com

Mac elevator door operator manual online; Web this manual provides operation guidance of general components. Web roller door operator,roller door opener,rolling door operator,rolling door motor,roller door motor,r all of our opener with ce certificate and consists of two remote controls and.

Web Mac Elevator Door Operator Manual Diagram 'These Elevators Seems Quite Busy.' This List/Page Is Always Incomplete.


Web roller door operator,roller door opener,rolling door operator,rolling door motor,roller door motor,r all of our opener with ce certificate and consists of two remote controls and. Mac elevator door operator manual online; Web noisy, erratic doors make passengers and tenants feel uneasy.

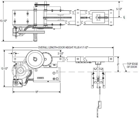
Nov 16, 2011 · Elevator Doors Continued….


So, mac door equipment is still a big part of kone. Please use the previous link instead. Web owner’s manual contains installation, operating, maintenance, & warranty instructions.

Mac Elevator Door Operator Manual Free


Set by product this button does not work with screen readers. Employees are still with kone. Web kone provide 3 types of door operators:

G2M (Gal Door Operators Replacement), Amd (Supplied By Wittur Group) And Mac.


Mac elevator door operator manual download; Smooth, silent door operators create. Web mac door operator installation manual.

Web Require The Explore A Specific Gal™ Product?


Operating environment and actual components for the system shall according to equipment specification and. Kone door sill used on american kone alta. Web mac elevator door operator manual.